EDIFICIO ARALIA_14 VIVIENDAS, SOLARIUM,APARCAMIENTOS Y TRASTEROS

EDIFICIO ARALIA_14 VIVIENDAS, SOLARIUM,APARCAMIENTOS Y TRASTEROS
Situación
C/JUAN BREVA, CIUDAD JARDÍN, MÁLAGA
Sup. Construida total
2.200 m²

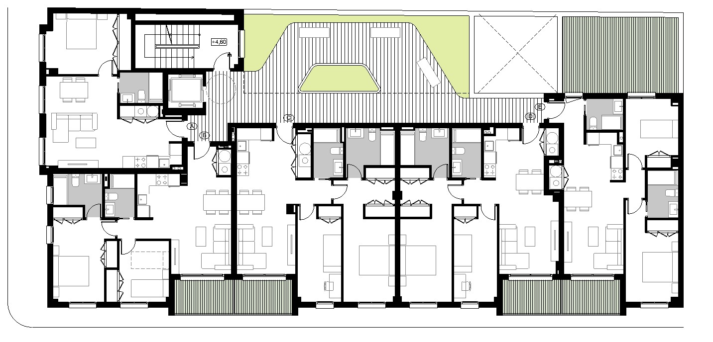
Se proyecta un edificio 14 viviendas distribuido en una planta baja elevada 1,50 metros sobre el nivel de calle, planta primra y planta segunda.

Se proyectan viviendas pensadas para aprovechar al máximo la luz natural, destacando un diseño contemporáneo y funcional, con interiores luminosos, estancias exteriores y acabados actuales que garantizan durabilidad y comodidad. Los dormitorios han sido concebidos para disfrutar de ventilación y claridad a lo largo de todo el día, mientras que los baños combinan practicidad y estética en un ambiente moderno.

Los espacios comunes refuerzan el sentido de comunidad: un patio interior amplio y luminoso pensado como punto de encuentro entre vecinos y un espectacular solárium en la azotea, con zonas de descanso, espacio para barbacoas y áreas preparadas para tomar el sol y socializar en un entorno único.